我們在設計后澆帶、施工縫的時候常常遇到采用遇水膨脹止水條、橡膠止水帶、止水鋼板,那么他們是否可以通用,有各自有哪些優缺點呢?
1、止水條
止水原理:止水條是靠吸水膨脹后與混凝土擠密,堵塞空隙來止水的。
規格尺寸:一般20mm*30mm 或50mm*50mm,從百度上了解到的價格信息是20-30元/米。

優缺點分析:
優點:施工方便,價格低廉。
缺點:施工過程中不可預見的問題較多,諸如雨季放置時間過長,則吸潮膨脹,影響效果。此外,有可能安裝時候不好固定發生移位,可能會被質檢部門要求返工。
適用部位:混凝土施工縫、后澆縫的止水。同時也適用于建筑構件拼裝接縫;盾構法隧道管片接縫;接縫的嵌縫;板縫墻縫的止水。
2、橡膠止水帶


止水原理:止水帶是防止阻止水分滲透而制作安裝的帶狀物,利用橡膠的高彈性和壓縮變形性,在各種荷載下產生彈性變形,從而起到緊固密封有效地防止建筑構件的漏水,滲水。具有一定的強度和韌性,其強度和韌性介于止水條和止水鋼板之間。
規格尺寸:根據水頭大小和變形量選取,帶寬在200-350mm之間。

優缺點分析:
優點:施工相對方便,價格低廉。
缺點:在砼澆筑時,由于止水帶為橡膠產品比較軟,容易變形,不順直,上下寬度不好控制,如果用鉛絲扎在鋼筋上,損壞止水帶,所以施工單位一般覺得麻煩,不喜歡用。且因其價格不高,利潤空間較低。
適用部位:一般用于防水部位的豎向止水,如施工縫或后澆帶或板墻結構的沉降縫、伸縮縫等沉降變形大的地方。
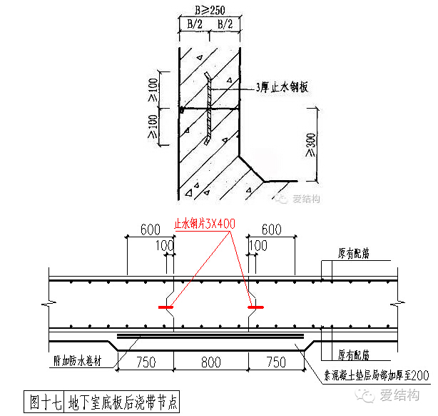
3、止水鋼板

止水原理:止水鋼板的“開口”朝迎面,且鋼板與混凝土結合緊密,輔以鋼板八字形狀,地下水很難沿施工縫從鋼板浸透。
尺寸規格:止水鋼板厚度一般3mm,寬度>200mm。

優缺點分析:
優點:鋼板止水帶連接部位要求焊滿,因此止水效果較好。同時引起利潤空間較高,常常受到施工單位青睞。
缺點:鋼板八字角在90°轉角部位焊縫極難控制,容易形成漏水點。鋼板轉角部位的焊接施工應作為該工序的關鍵部位予以控制。
適用部位:適用于有地下水的構筑物,如水池等有水的建筑,以及埋深在地下水位以下的水平和豎向施工縫處。